ПРОИЗВОДСТВА и СЕРВИСНЫЕ ЦЕНТРЫ

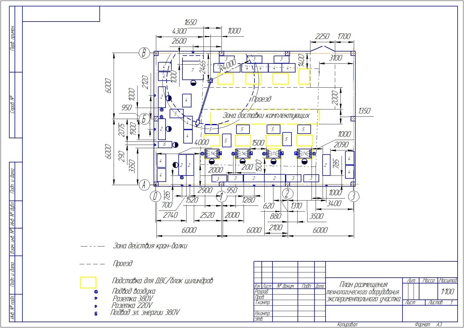
Проектирование будущего производства - это залог
успешной работы предприятия.

На этапе проектирования учитывается технология
производства, внутренняя логистика и удобство работы
всех смежных отделов и участков.

Реализуем проекты от концепции, включая поставку зданий
и оборудования.
Уникальные предложения для действующих сервисных
центров на территории РФ и СНГ.
Компания ИТР
  • Разработка концепции будущего производства;
  • Эскизный проект;
  • Разработка планировки;
  • Подбор и поставка оборудования;
  • Автоматизация производства;
  • Разработка средств технического оснащения производства и сервисного центра;
  • Разработка технологии производства;
  • Проектирование и доработка отдельных частей оборудования;
  • Подготовка документации для надзорных органов;
  • Проектирование и строительство производственных и административных зданий.
ГОТОВА РАЗРАБОТАТЬ ПРОЕКТ БУДУЩЕГО СЕРВИСНОГО
ЦЕНТРА ИЛИ ПРОИЗВОДСТВА, ПРИМЕНЯЯ КОМПЛЕКСНЫЙ ПОДХОД:
Используя комплексный подход к решению задач, было
спроектировано и запущено в работу 10 сервисных центров большегрузных автомобилей.
Проекты реализовывались от стадии "Концепции" и
проектирования, до поставки, пусконаладки
технологического оборудования и инженерных систем.
Оставьте заявку и убедитесь в этом сами!
Нажимая на кнопку, вы даете согласие на обработку персональных данных и соглашаетесь c политикой конфиденциальности
Наши работы